施工図屋ドットコム

SekouzuYa.com

 

建築施工図・仮設計画図・実施設計図・CADトレース

の図面作成ことならお任せください!

足場計算書、型枠支保工計算書の作成:対応可能】

 

図面作成代行・支援・協力・外注作図 

海外・中国・大連・施工図屋

施工図屋ドットコムについて

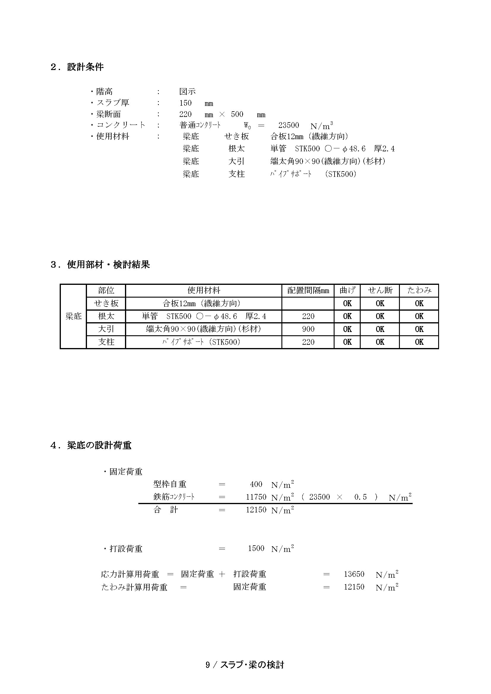
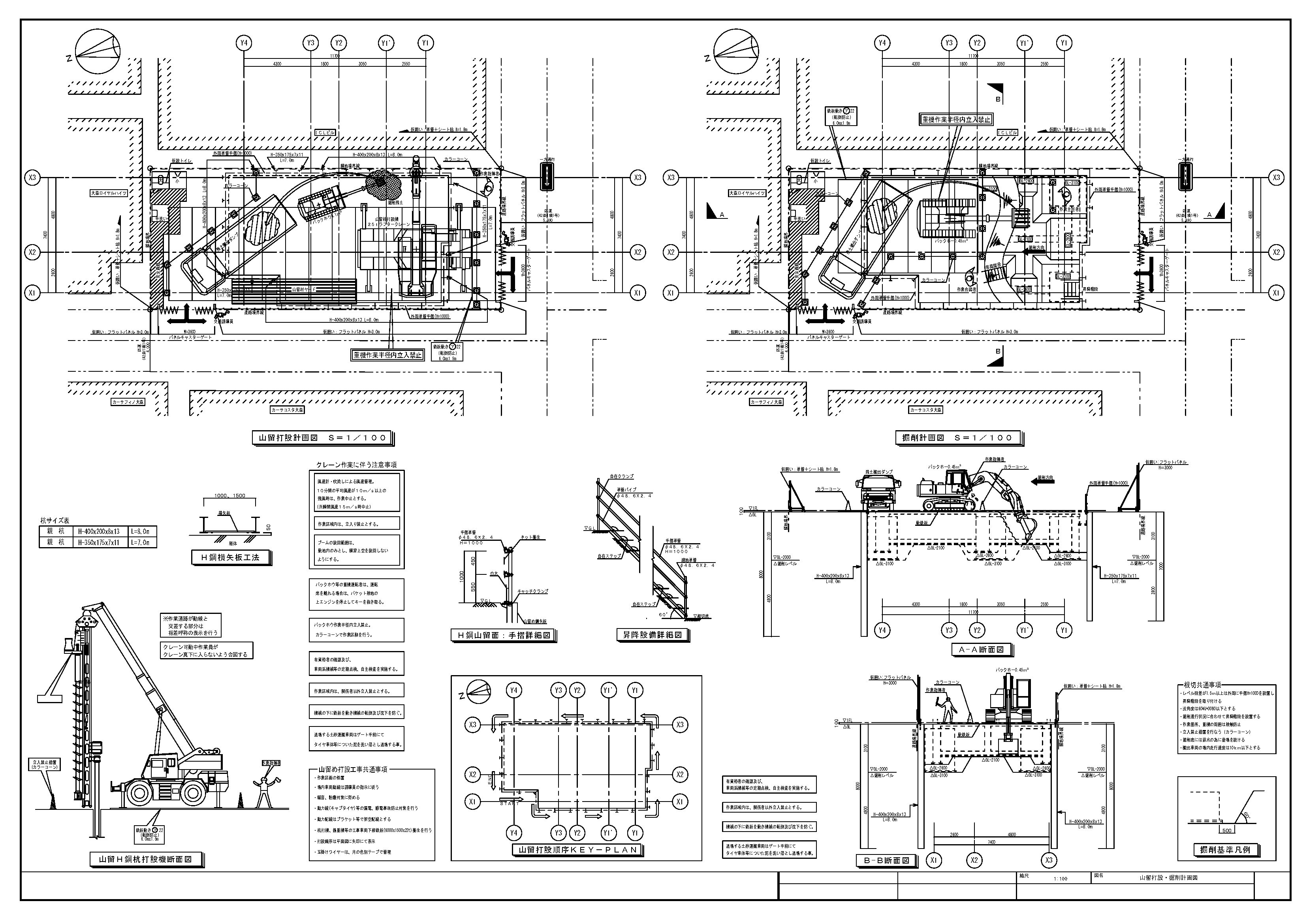
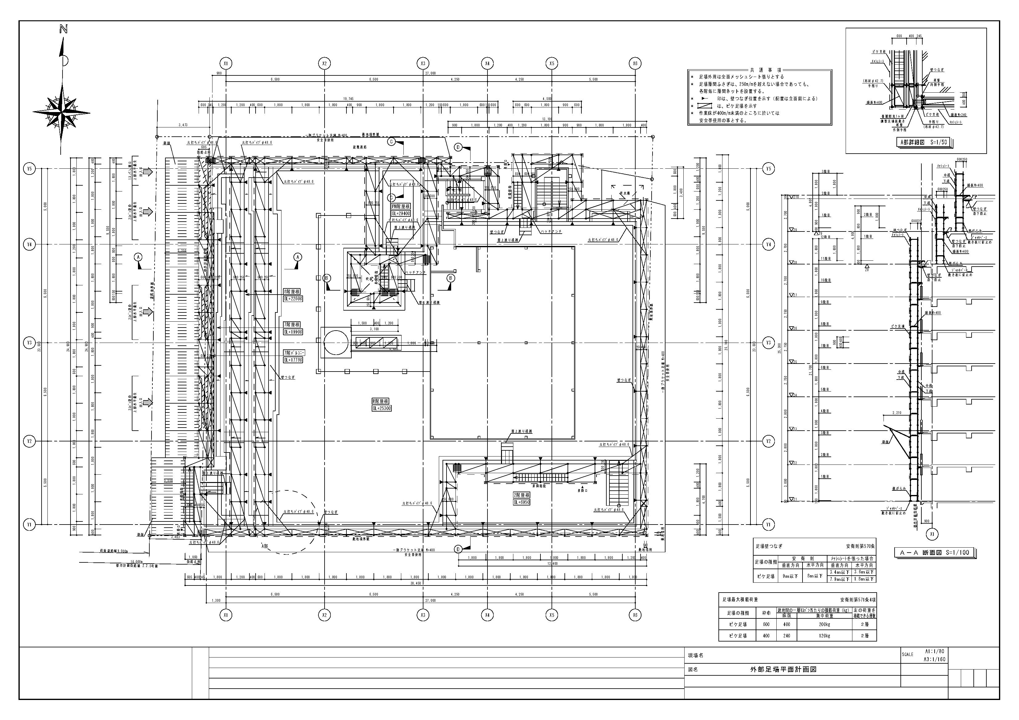
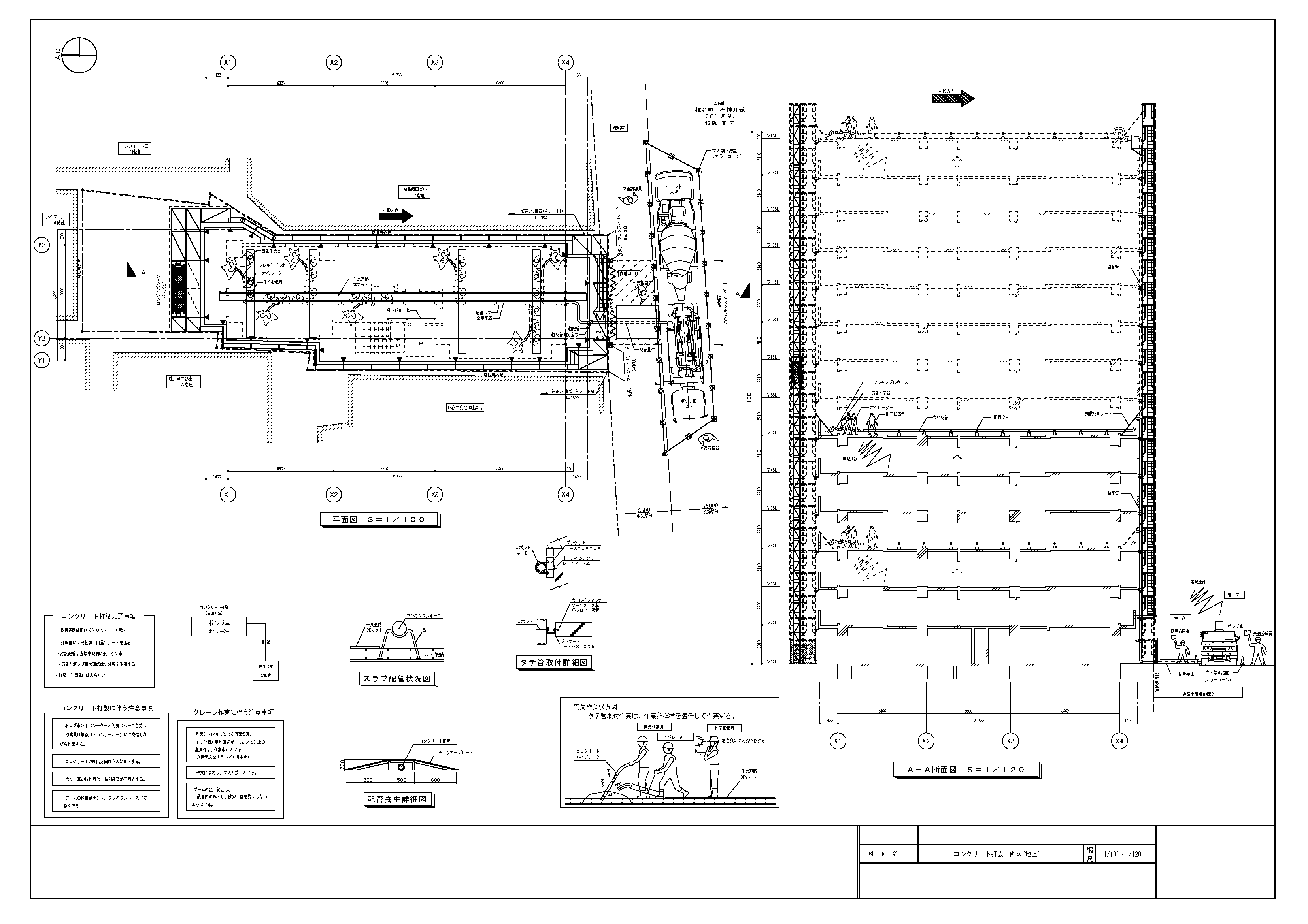
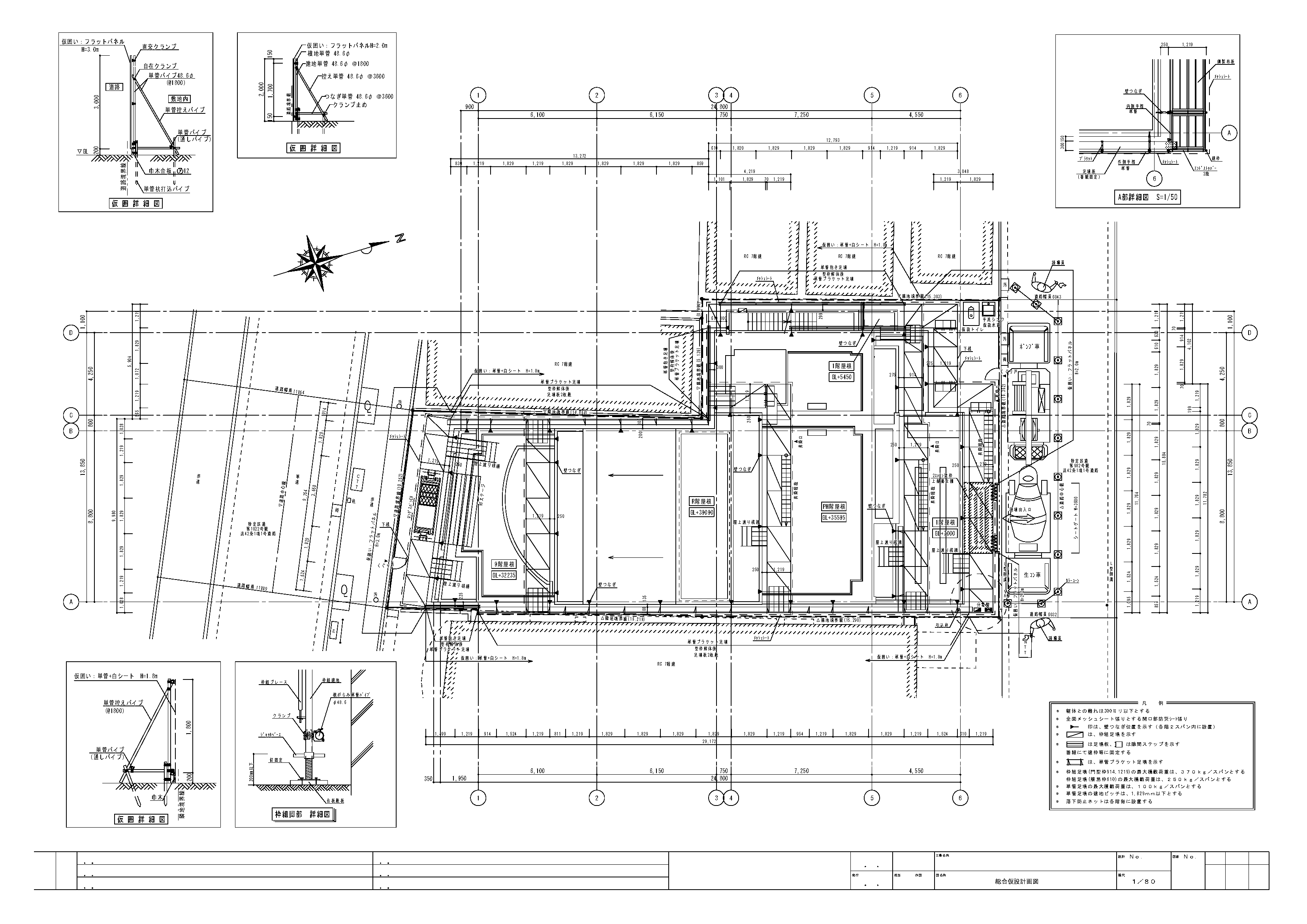
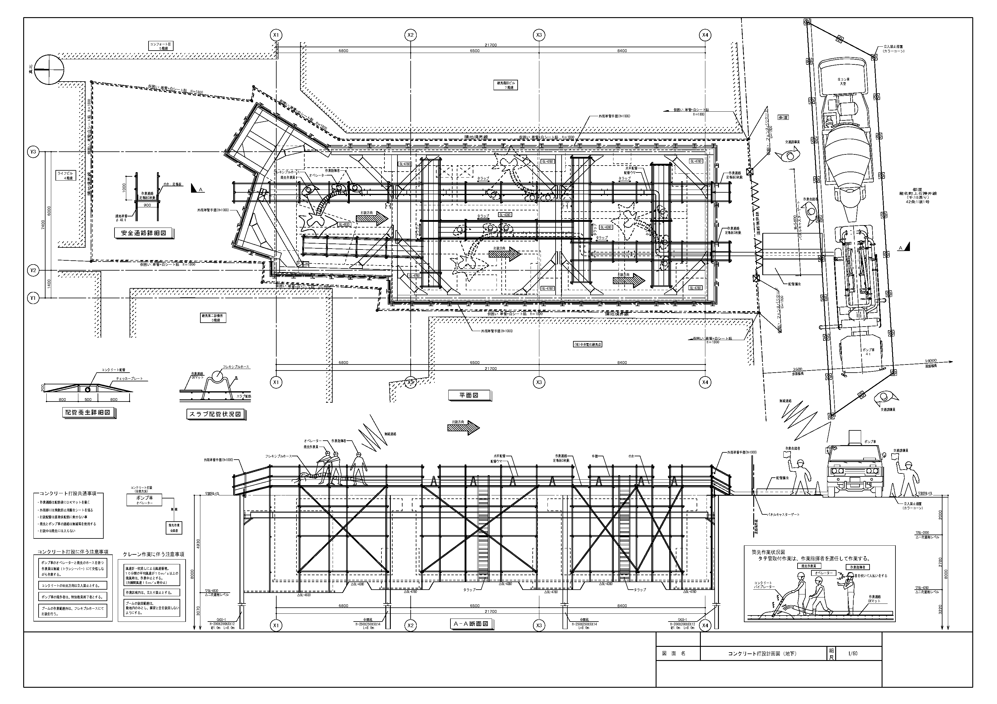
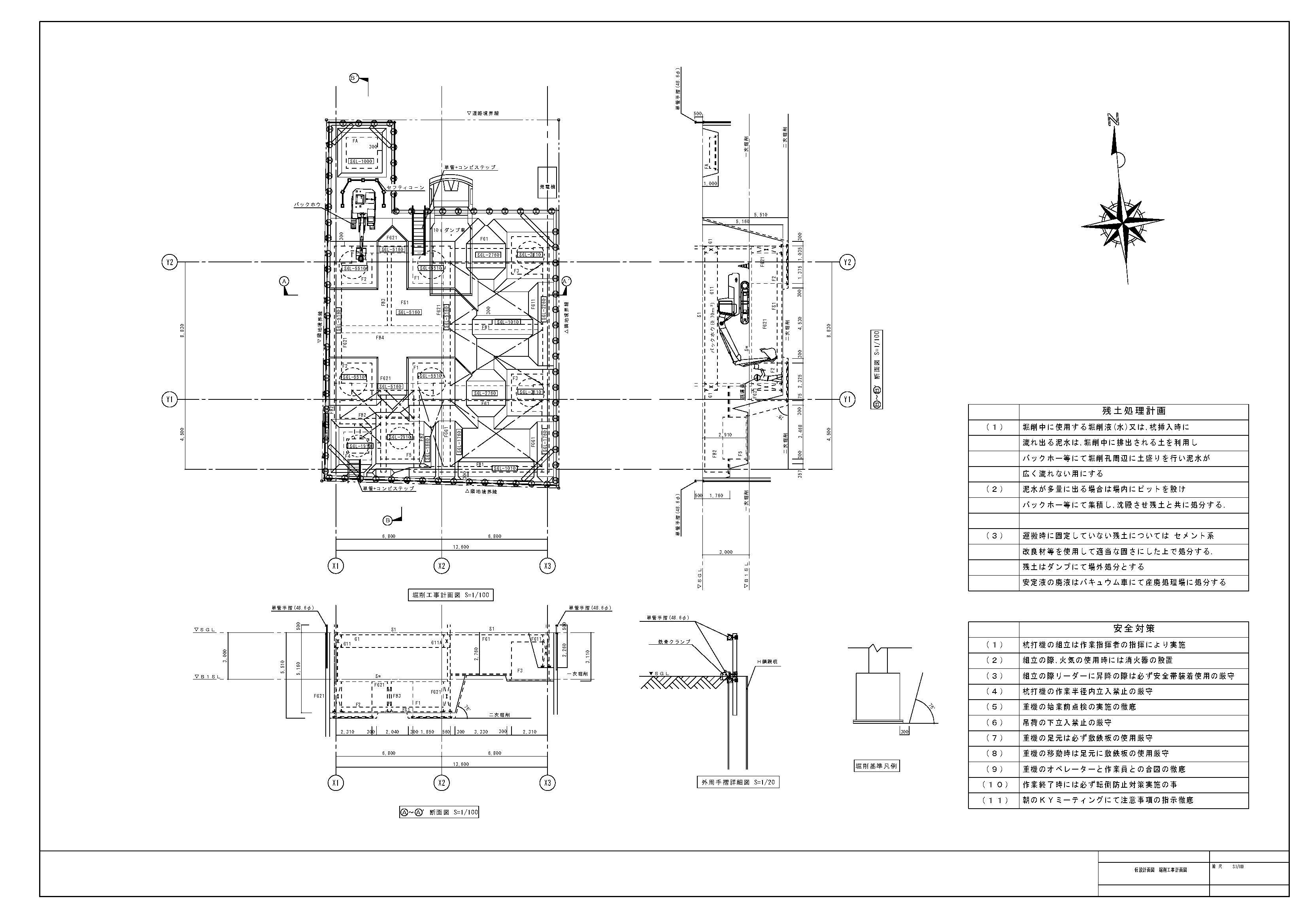
仮設計画図

サンプル

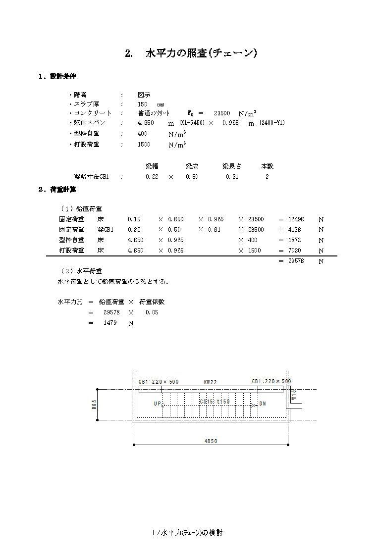
足場計算書

サンプル

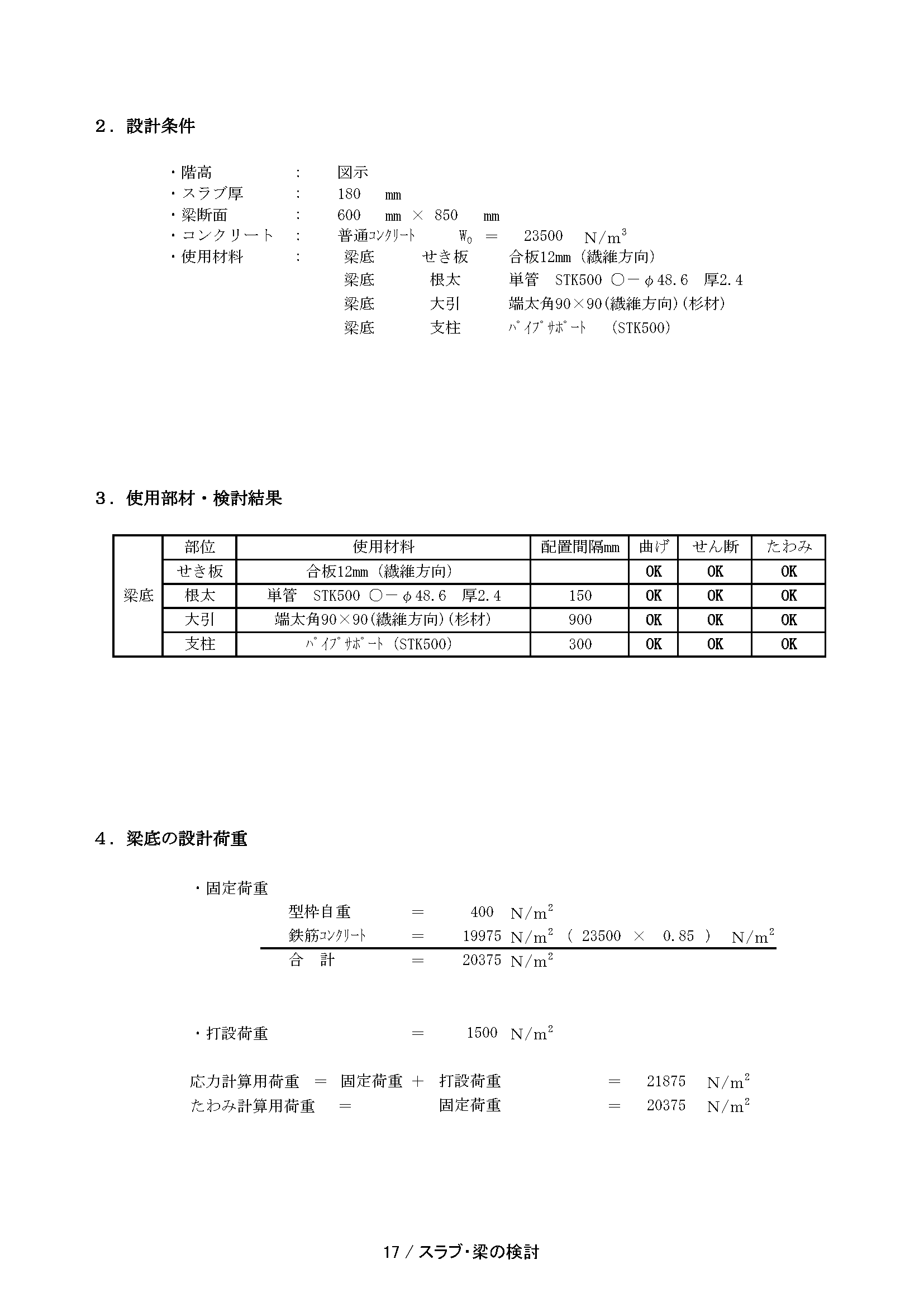
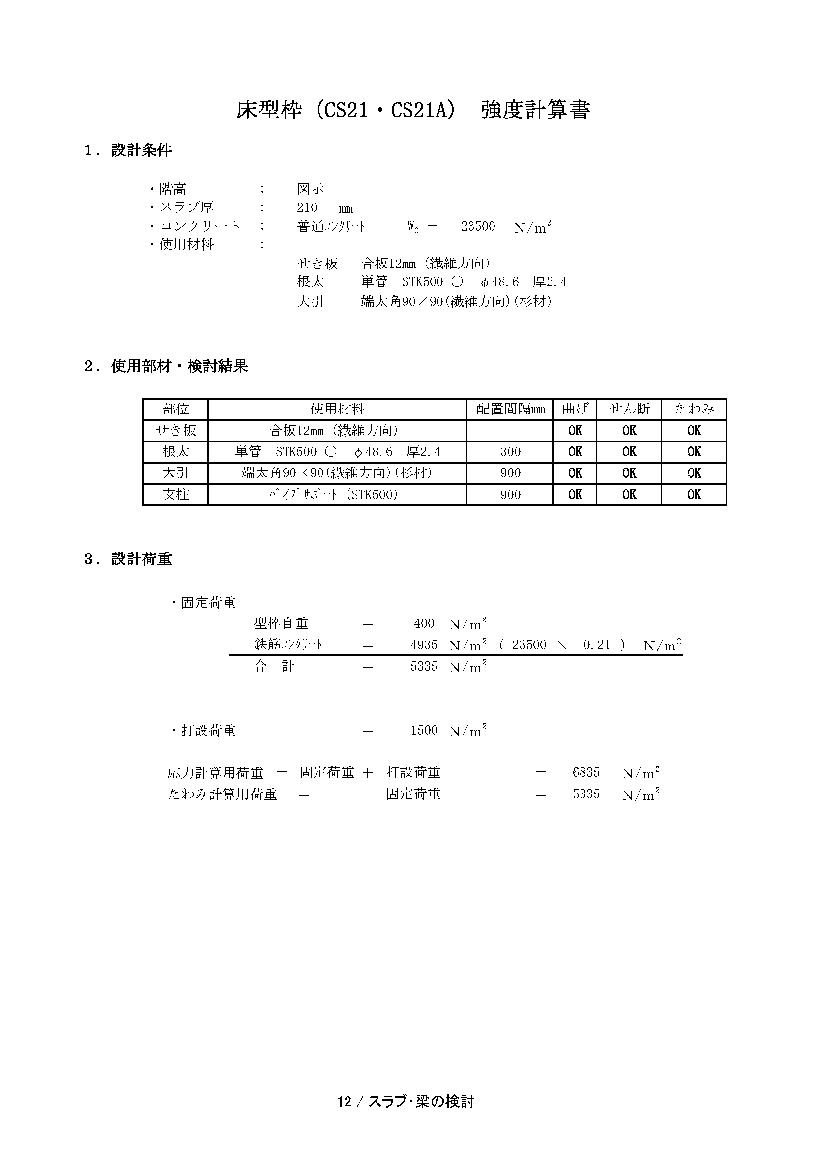
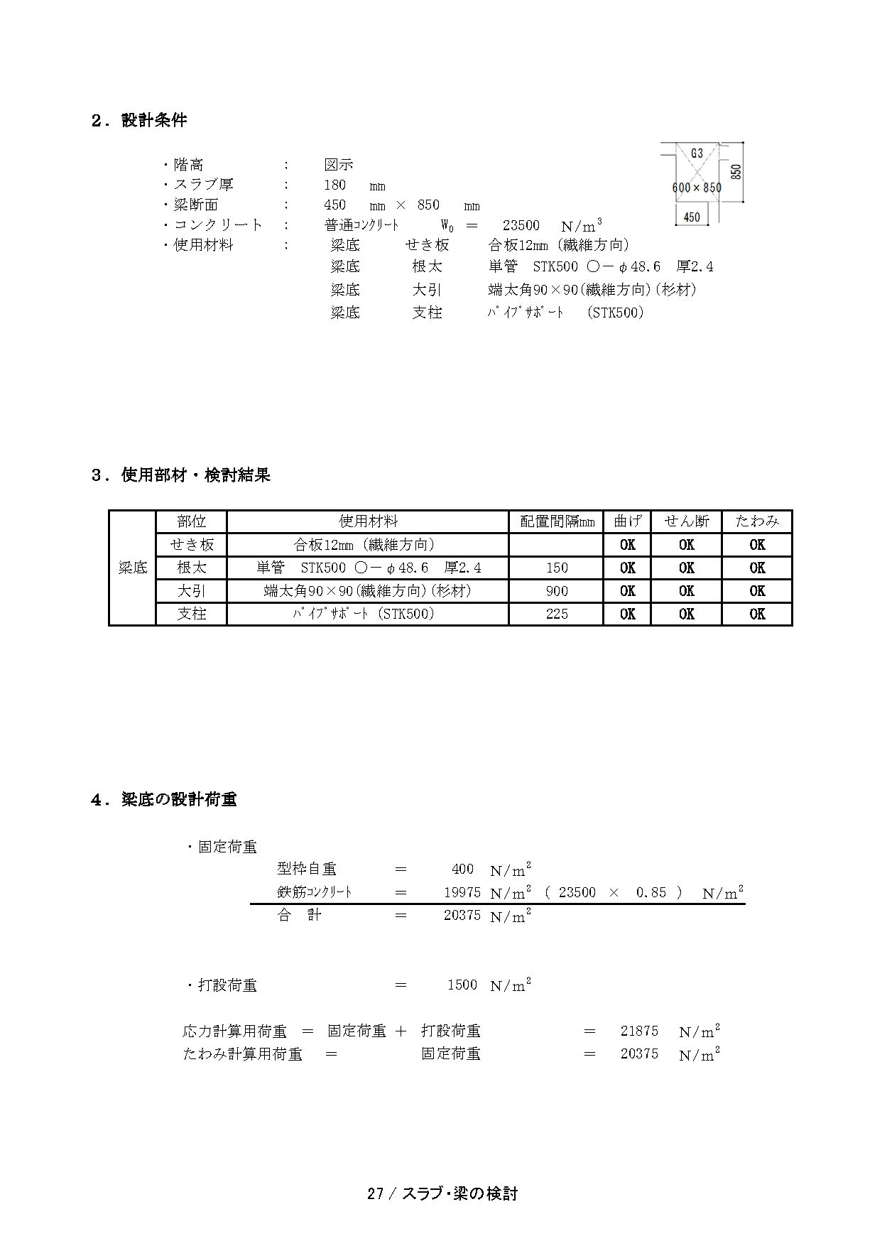
階段最上部型枠支保工計算書

サンプル

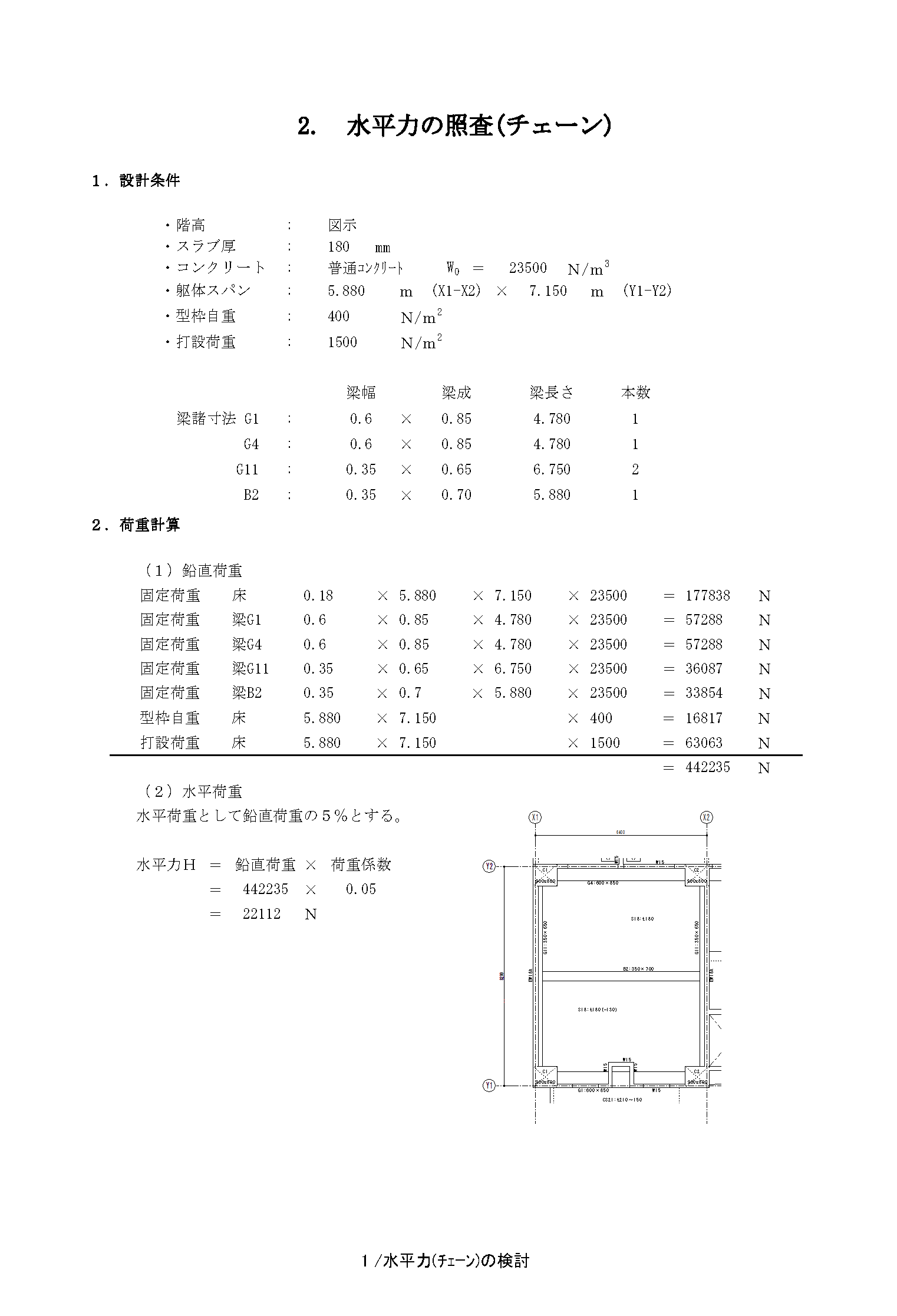
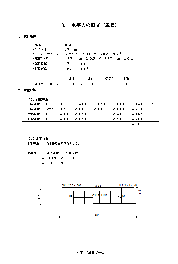
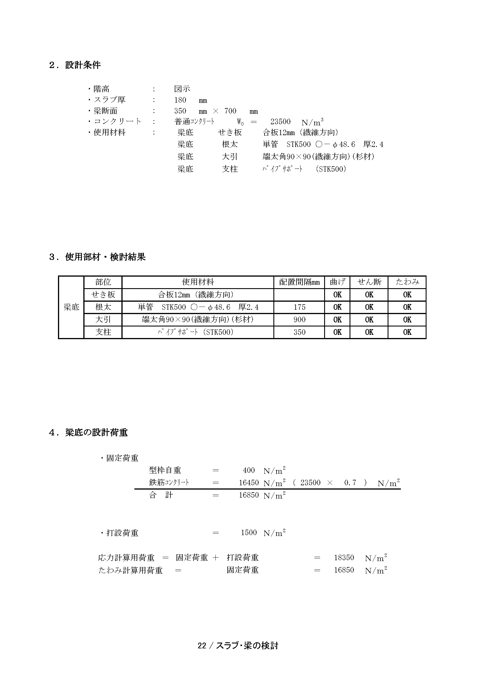
基準階型枠支保工計算書

サンプル

・  88申請図

1 総合仮設計画図

2 鉄筋地足場計画図

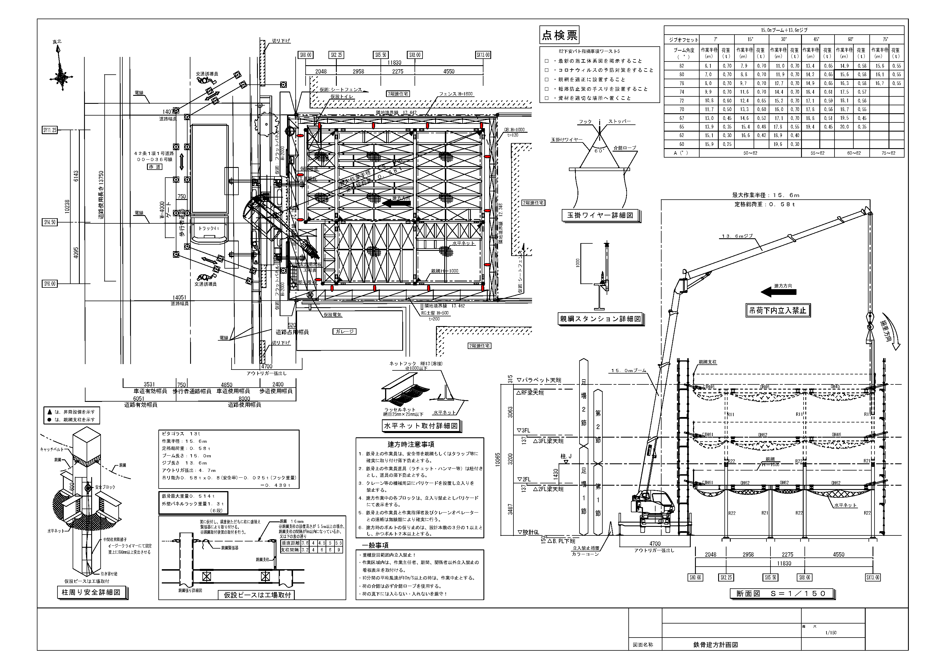
3 鉄骨建方計画図

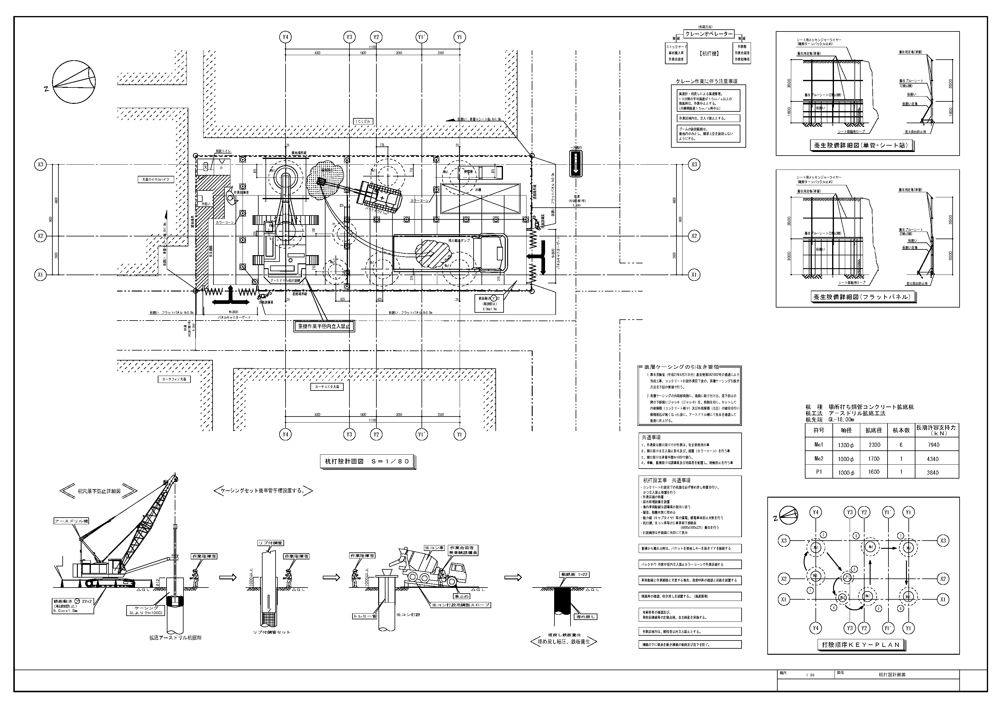
4 杭打設計画図

5 山留計画図

6 根伐計画図

7 外部足場計画図

8 型枠支保工計画図

9 コンクリート打設計画

10 外部足場計算書

11 型枠支保工計算書

12 その他:要相談

仮設計画図→対応可能

仮設計画図とは?

  仮設計画図とは飛散防止のネットや足場や型枠支保工等、工事作業の際に設置したり組み立てたりする仮設工事を行う時に作図CADソフトを使用し作成する現場用の設計施工図面です。


  仮設工事は足場や型枠支保工を組み立てて、高所の工事を行えるようにしたり、作業をしやすい環境にしたりすることで、工事そのものを効率的に行えるようにします。その他にも物の落下を防ぐネット等を盛り込むことで近隣への安全対策へ繋げることもできます。


  仮設計画図には「総合仮設計画図」、「根切り計画図」、「足場計画図」、「型枠支保工計画図」等工事の内容によって種類は多岐に渉ります。


  建築建物そのものの設計図ももちろん大切ですが、その建物を作る際に必要なユニットの設置場所であったり、機器をどのように使うか等、具体的な部分まで検討する仮設計画図も大切になりますと思われます。


  又、仮設計画図の作図・作成を行なっている『施工図屋ドットコム』のような業者等も有る為に、弊社のような仮設計画図の作図ができる協力会社へ委託し、コスト・工期等を抑えたり実現することで、現場担当者としての負担を和らげるといった方法もよく考えられます。


 

私たちは誰ですか。

 

施工図屋とは、建設現場で使われる施工図を作る専門家のことです。

 

私たちは中国大連に在る建築施工図・仮設計画図・実施設計図面・CADトレース(図面トレース)CAD作図の専門製作会社です。

 

CAD(AutoCAD・Jw_cad)により作図を行っております。

 

施工図屋ドットコムの工夫は誠実である。

「顧客至上、品質第一、納期厳守」という理念を掲げ、業界効率的で専門的な品質を先導企業を目指し、顧客に優れた図面やサービスを提供いたします。

 

主な業務:

建築施工図・仮設計画図・実施設計図・CADトレース・CAD作図
当社では建築施工図・仮設計画図・実施設計図・CADトレースの作図を行っております。小規模な建物から大型商業ビルまで、施工図・仮設計画図(
足場計算書,型枠支保工計算書作成)・実施設計図・CADトレースの経験が豊富なスタッフが作図対応致します。

まずはお気軽にお問い合わせください。

施工図とは?

  施工図とは施工者が扱う図面の一つです、実際に建物を施工するために必要な図面を言います。設計者が作成した設計図(意匠図、構造図、設備図等)を元に、施工者・施工図屋はその図面・施工図を作成します。


  建築現場において必要不可欠となる、建物の施工内容が記載された最終決定の図面「施工図」です。設計段階の図面には無い細かい部分の寸法及び設計図の不整合・相違・問題点等も記載されている施工図は、建物の品質にも大きく影響する重要な図面になります。


  『施工図屋ドットコム』(海外・中国・大連)は、この施工図作成を高品質・短納期・低コストで代行・支援・協力いたします。

 

施工図→対応可能

1 躯体図一式
     杭伏図、基礎伏図、根切図、土間伏図、見上図、セットバック床伏図、屋根伏図、階段躯体図 
2 仕上図一式
     平面詳細図、展開図、天井伏図、水廻り詳細図、外構図          
3 割付図
     タイル割付平面・立面図、床タイル割付図、パネル割付図、インサート割付図、その他割付図
4 配筋図
     基礎柱・梁全体配筋図、基礎柱・梁配筋納まり図:要相談

5 その他:要相談